End-to-End Service
for Packaging Operations
Pre-Sales Services
- Conduct overall production site planning based on customer requirements, or use dimensions provided by the customer.
- Assist in selecting the most suitable equipment, considering parameters such as output and stability. In case of conflicts with existing models’ stability or output, provide guidance to choose the optimal solution.
- Provide all technical specifications and written contractual conditions to ensure clear understanding of equipment performance and configuration.
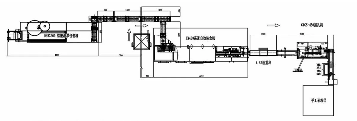
- Supply production line drawings and technical documentation to offer a comprehensive understanding of the equipment setup.
During-Sales Services

- Ensure confirmed technical specifications remain unchanged during manufacturing and provide progress updates according to the production schedule.
- Customers supply required packaging materials and components on time to guarantee timely installation and commissioning.
- Provide operation manuals, maintenance guides, and standard procedures for operation, maintenance, and cleaning.
After-Sales Services

Delivery and Commissioning
- Upon equipment arrival, installation and commissioning ensure full integration with the production line and achievement of design capacity.
- Training is provided for equipment operation, parameter settings, daily maintenance, and troubleshooting. Free repairs and spare parts are provided during the warranty period, with ongoing technical support and spare parts supply available after the warranty expires.
Spare Parts Support
- All supplied components are laser-marked with identification numbers for precise replacement and accurate positioning.
Follow-Up Visits
- A comprehensive customer follow-up system ensures continuous technical support.
- Detailed records of each visit ensure timely resolution of issues.
Fault Response and Repair
- Initial troubleshooting is conducted via phone or video.
- If the issue is severe or on-site support is required, personnel are dispatched according to the situation, with related costs discussed with the customer.
